A.A. TV 26-10

Vendesi all'asta appartamento in data 11 marzo 2026

In località Ceneda a 1.5 km d...
A.A. TV 26-10

Vendesi all'asta appartamento in data 11 marzo 2026

In località Ceneda a 1.5 km d...
A.A. TV 26-10

Vendesi all'asta appartamento in data 11 marzo 2026

In località Ceneda a 1.5 km d...
A.A. TV 26-10

Vendesi all'asta appartamento in data 11 marzo 2026

In località Ceneda a 1.5 km d...
A.A. TV 26-10

Vendesi all'asta appartamento in data 11 marzo 2026

In località Ceneda a 1.5 km d...
A.A. TV 26-10

Vendesi all'asta appartamento in data 11 marzo 2026

In località Ceneda a 1.5 km d...
A.A. TV 26-10

Vendesi all'asta appartamento in data 11 marzo 2026

In località Ceneda a 1.5 km d...
Vittorio Veneto (Via Milesi 14)

A.A. TV 26-10 Vendesi all'asta appartamento in data 11 marzo 2026 In località Ceneda a 1.5 km d...

48.600€


1967
80mq
F
2 piani
2 camere
1 bagni


Descrizione

A.A. TV 26-10

Vendesi all'asta appartamento in data 11 marzo 2026

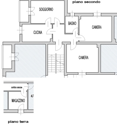
In località Ceneda a 1.5 km dalla piazza papa Giovanni Paolo I, appartamento trilocale posto al secondo piano con loggia e magazzino al piano terra, inserito in un contesto condominiale di un tranquillo quartiere residenziale. al limite del centro urbano, prospicente le colline e vicino a servizi primari. Esso è composto da: ingresso, pranzo-soggiorno, cucina, disimpegno, camera matrimoniale, camera doppia e
bagno oltre a una loggia e un magazzino.

Prezzo minimo: 48.600 euro

L'immobile viene venduto tramite asta , la vendita è riservata alle sole persone che possono usufruire delle agevolazioni prima casa , ed il prezzo indicato si riferisce al prezzo minimo accettato per la partecipazione all’asta solo per chi ha diritto ad agevolazione "Prima Casa".


Aste-Affari fornisce un servizio di assistenza e consulenza tecnica, legale, fiscale e finanziaria su acquisti all’asta e affari immobiliari, al fine di rendere più facile e sicuro l'acquisto di un immobile proveniente dal mercato giudiziario oppure da occasioni presenti sul mercato immobiliare.
Analisi di fattibilità, tecnica, burocratica, finanziaria, legale, esame problematiche e vincoli, conteggio costi accessori ed occulti, assistenza in tutte le fasi della procedura fino alla consegna delle chiavi dell’immobile.
L'acquisto può essere finanziato tramite mutuo, e, ove possibile anche in pre-asta tramite procedura di saldo-stralcio.
Per info aggiuntive, prenotazione visione, consulenza ed assistenza su asta :

Studio di Consulenza : "aste-affari.com"

Info: 04221780185 – 042217801118

www.aste-affari.com --- annuncio pubblicato con GESTIONALEIMMOBILIARE.it

Scopri i dettagli dell'annuncio su GESTIONALEIMMOBILIARE.IT

Caratteristiche

  • Categoria: Case e appartamenti
  • Stato: Buono
  • Disponibilità immediata: No
  • Superficie calpestabile: 80mq
  • Locali: 3
  • Altro: