Quest’immobile viene venduto tramite asta online.

Capannone con uffici e corte esterna sito a Is...
Quest’immobile viene venduto tramite asta online.

Capannone con uffici e corte esterna sito a Is...
Quest’immobile viene venduto tramite asta online.

Capannone con uffici e corte esterna sito a Is...
Quest’immobile viene venduto tramite asta online.

Capannone con uffici e corte esterna sito a Is...
Quest’immobile viene venduto tramite asta online.

Capannone con uffici e corte esterna sito a Is...
Quest’immobile viene venduto tramite asta online.

Capannone con uffici e corte esterna sito a Is...
Quest’immobile viene venduto tramite asta online.

Capannone con uffici e corte esterna sito a Is...
Quest’immobile viene venduto tramite asta online.

Capannone con uffici e corte esterna sito a Is...
Quest’immobile viene venduto tramite asta online.

Capannone con uffici e corte esterna sito a Is...
Quest’immobile viene venduto tramite asta online.

Capannone con uffici e corte esterna sito a Is...
Isola Vicentina (Via Europa, 46, 36033 Isola Vicentina VI, Italia)

Quest’immobile viene venduto tramite asta online. Capannone con uffici e corte esterna sito a Is...

650.000€


-
2155mq
-


Descrizione

Quest’immobile viene venduto tramite asta online.

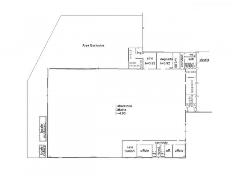
Capannone con uffici e corte esterna sito a Isola Vicentina (VI), in località Castelnovo, via Europa n.46.

Trattasi di porzione di un più ampio complesso artigianale ubicato in zona produttiva ben collegata alla Strada Provinciale 46 del Pasubio.

L’immobile comprende un’ampia area laboratorio, uffici, locali di servizio e deposito, oltre a un’area esterna scoperta di circa 900 mq, ideale per sosta e movimentazione merci.

L’edificio, con struttura portante in cemento armato e tamponamenti in pannelli prefabbricati, presenta copertura piana con lucernari che garantiscono ottima luminosità naturale. Gli interni sono caratterizzati da finiture di buon livello, pavimenti in piastrelle e legno, servizi igienici rivestiti in ceramica e impianti funzionanti.

Sono presenti non conformità, per maggiori informazioni vedasi documentazione allegata.

Quimmo.it: iniziativa tech del Gruppo illimity specializzata nell’intermediazione digitale di beni immobili provenienti da tribunali, nuovi sviluppi immobiliari, financial institutions e libero mercato.
Da oltre 10 anni Quimmo.it è il portale specializzato nella compravendita di immobili tramite asta giudiziaria. Il portale è infatti iscritto nel Registro Gestori della vendita telematica e nell’elenco dei siti web autorizzati allo svolgimento della pubblicità legale. Con Quimmo puoi scegliere tra migliaia di immobili di ogni tipo e partecipare alle aste online per acquistare la soluzione più adatta alle tue esigenze.
Affidati all’esperienza decennale dei nostri esperti e richiedi l’assistenza gratuita per la presentazione e compilazione dell’offerta.
Contattaci subito. --- annuncio pubblicato con GESTIONALEIMMOBILIARE.it

Scopri i dettagli dell'annuncio su GESTIONALEIMMOBILIARE.IT

Caratteristiche

  • Categoria: Magazzini e capannoni
  • Stato: Buono
  • Disponibilità immediata: No