Rif. 1311 – ANTONIO – Per informazioni: 338.4892021 EUROMEDIA propone in locazione un interessant...
Se stai cercando uno spazio versatile e strategico per la tua attività, non perdere questa opport...
RIF: 116NM - SACCOLONGO (PD) - PER INFO 340 335 8378 - 0444/310220 Propongo in affitto un capanno...
RIF: 115NM - PADOVA - PER INFO: 340335 8378 - 0444310220 Propongo in AFFITTO capannone produttivo...
Rif. 1557 – ANTONIO – Per informazioni: 338.4892021 EUROMEDIA propone in locazione un interessant...
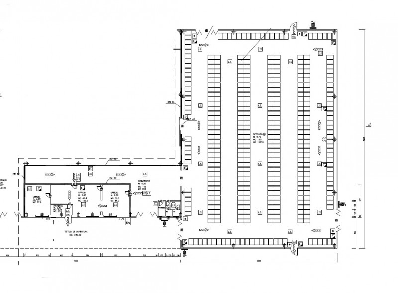
CAPANNONE INDUSTRIALE DI 2.000 MQ CON UFFICI DI 450 MQ E SCOPERTO ESCLUSIVO - Rif. A8318 Proponia...
Rif. 1432 – ANTONIO – Per informazioni: 338.4892021 EUROMEDIA propone in locazione un interessant...
ALBIGNASEGO - ZONA STRADA BATTAGLIA. Proponiamo in locazione porzione indipendente di capannone i...
Altavilla Vicentina - via Lago Maggiore Stai cercando un capannone in affitto? Canone mensile € 1...
In una posizione strategica all’interno della zona industriale di Ronchi di Campanile (Villafranc...