A.A. Tv 26-9

Vendesi all'asta appartamento in data 11 marzo 2026

Nel centro di Falzè a 0.1 km d...
A.A. Tv 26-9

Vendesi all'asta appartamento in data 11 marzo 2026

Nel centro di Falzè a 0.1 km d...
A.A. Tv 26-9

Vendesi all'asta appartamento in data 11 marzo 2026

Nel centro di Falzè a 0.1 km d...
A.A. Tv 26-9

Vendesi all'asta appartamento in data 11 marzo 2026

Nel centro di Falzè a 0.1 km d...
A.A. Tv 26-9

Vendesi all'asta appartamento in data 11 marzo 2026

Nel centro di Falzè a 0.1 km d...
A.A. Tv 26-9

Vendesi all'asta appartamento in data 11 marzo 2026

Nel centro di Falzè a 0.1 km d...
Trevignano (Via Municipio 1)

A.A. Tv 26-9 Vendesi all'asta appartamento in data 11 marzo 2026 Nel centro di Falzè a 0.1 km d...

70.700€


2017
75mq
F
5+ piani
2 camere
2 bagni


Descrizione

A.A. Tv 26-9

Vendesi all'asta appartamento in data 11 marzo 2026

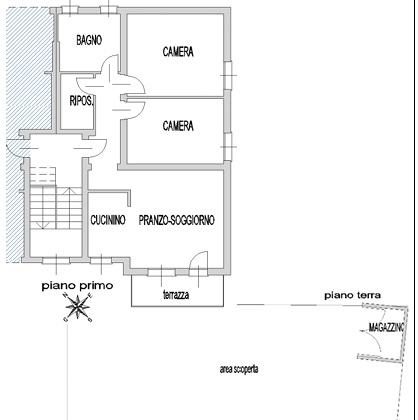
Nel centro di Falzè a 0.1 km dal Municipio, appartamento trilocale posto al primo piano con magazzino e orto, inserito in un contesto condominiale di un tranquillo quartiere residenziale nelle vicinanze di parcheggio pubblico e vicino a servizi primari. Esso è composto da: ingresso-disimpegno, soggiorno-pranzo, cucinino, camera matrimoniale, camera doppia, ripostiglio e bagno.

Prezzo minimo: 70.700 euro

L'immobile viene venduto tramite asta , la vendita è riservata alle sole persone che possono usufruire delle agevolazioni prima casa , ed il prezzo indicato si riferisce al prezzo minimo accettato per la partecipazione all’asta solo per chi ha diritto ad agevolazione "Prima Casa".


Aste-Affari fornisce un servizio di assistenza e consulenza tecnica, legale, fiscale e finanziaria su acquisti all’asta e affari immobiliari, al fine di rendere più facile e sicuro l'acquisto di un immobile proveniente dal mercato giudiziario oppure da occasioni presenti sul mercato immobiliare.
Analisi di fattibilità, tecnica, burocratica, finanziaria, legale, esame problematiche e vincoli, conteggio costi accessori ed occulti, assistenza in tutte le fasi della procedura fino alla consegna delle chiavi dell’immobile.
L'acquisto può essere finanziato tramite mutuo, e, ove possibile anche in pre-asta tramite procedura di saldo-stralcio.
Per info aggiuntive, prenotazione visione, consulenza ed assistenza su asta :

Studio di Consulenza : "aste-affari.com"

Info: 04221780185 – 042217801118

www.aste-affari.com

Sei un debitore ? Chiamaci ! Abbiamo soluzioni personalizzate anche per te. --- annuncio pubblicato con GESTIONALEIMMOBILIARE.it

Scopri i dettagli dell'annuncio su GESTIONALEIMMOBILIARE.IT

Caratteristiche

  • Categoria: Case e appartamenti
  • Stato: Buono
  • Disponibilità immediata: No
  • Superficie calpestabile: 75mq
  • Locali: 3
  • Altro: