VICENZA LOBIA: DELIZIOSA SCHIERA DI TESTA CON LAVANDERIA E POSTI AUTO COPERTI, IN OTTIMO CONTESTO...
1.100€
Descrizione
VICENZA LOBIA: DELIZIOSA SCHIERA DI TESTA CON LAVANDERIA E POSTI AUTO COPERTI, IN OTTIMO CONTESTO TRANQUILLO ED IMMERSA NEL VERDE, CLASSE EN. A1! RIF. 1229 EURO 1.100+50 SPESE CONDOMINIALI. CHIAMA ALESSANDRA 329 9388197 CHIAMA ALESSANDRA +39 3299388197 O SCRIVI AD [email protected]
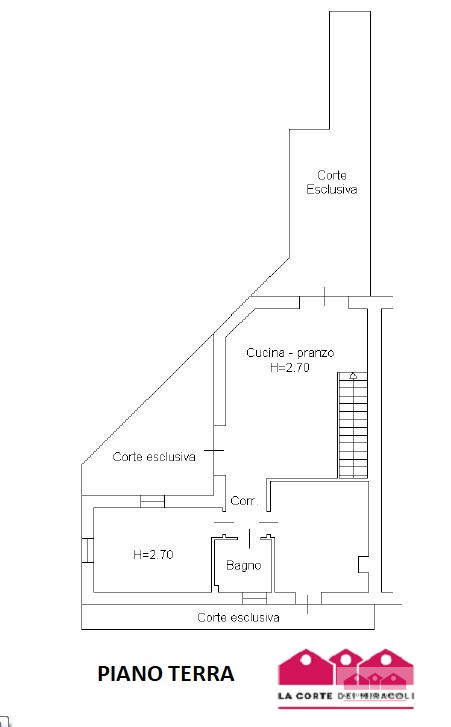
In contesto tranquillo e di recentissima costruzione, molto ben tenuto ed abitato, disponiamo di una SCHIERA DI TESTA su due livelli circondata dal verde. L’unita allo stesso tempo si trova vicino alla zona di Rettorgole, comoda quindi a tutti i servizi ed è così composta: piano terra con ingresso, bel portico, grande e luminoso soggiorno da cui si accede alla terrazza coperta che può essere adibita a dispensa o lavanderia, due camere da letto ed un bagno con doccia. Al piano interrato troviamo un ampio soggiorno con cucina e sala da pranzo combinate insieme. La cucina è completamente arredata con tavolo e sedie, troviamo poi un altro bagno con doccia, una terza camera da letto, una lavanderia e un ripostiglio. Posto auto privato sotto la tettoia, finiture molto eleganti, alta efficienza energetica, pannelli solari, travi in legno, pavimenti in legno con riscaldamento a pavimento, sistema di allarme. RIF. 1229 EURO 1.100+50 SPESE CONDOMINIALI. CHIAMA ALESSANDRA 329 9388197 CHIAMA ALESSANDRA +39 3299388197 O SCRIVI AD [email protected]
Immobiliare LA CORTE DEI MIRACOLI
Piazza Pontelandolfo n.3 - Vicenza
Tel. 0444 525218
www.lacortedeimiracoli.eu
[email protected] --- annuncio pubblicato con GESTIONALEIMMOBILIARE.it
Caratteristiche
- Categoria: Case e appartamenti
- Stato: Buono
- Disponibilità immediata: No
- Superficie calpestabile: 130mq
- Locali: 4
- Altro: